Skip to main content
Mobile Navigation

Experimental study on hydrogen explosions in a full-scale hydrogen filling station model

June 07, 2007
Experimental study on hydrogen explosions in a full-scale hydrogen filling station model

Authors

T. Tanaka, T. Azuma, J.A. Evans, P.M. Cronin, D.M. Johnson, R.P. Cleaver

Publication

This report appeared in the International Journal of Hydrogen Energy, Volume 32, Issue 13, September 2007.

Abstract

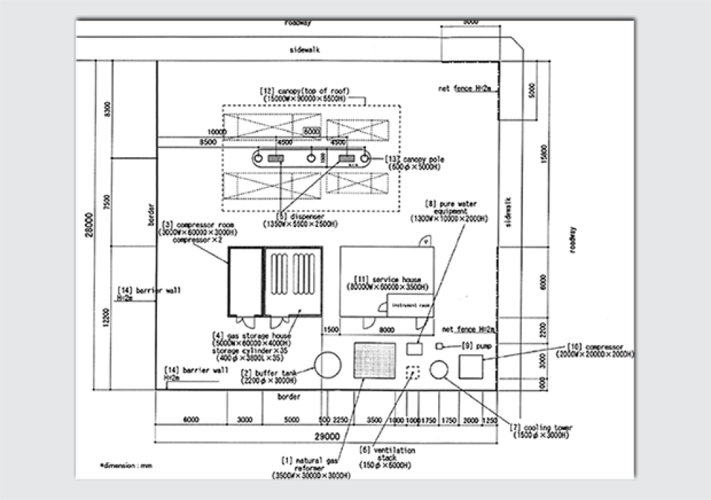
In order for fuel cell vehicles to develop a widespread role in society, it is essential that hydrogen refuelling stations become established. For this to happen, there is a need to demonstrate the safety of the refuelling stations. The work described in this paper was carried out to provide experimental information on hydrogen outflow, dispersion and explosion behaviour. In the first phase, homogeneous hydrogen–air mixtures of a known concentration were introduced into an explosion chamber and the resulting flame speed and overpressures were measured. Hydrogen concentration was the dominant factor influencing the flame speed and overpressure. Secondly, high-pressure hydrogen releases were initiated in a storage room to study the accumulation of hydrogen. For a steady release with a constant driving pressure, the hydrogen concentration varied as the inlet airflow changed, depending on the ventilation area of the room, the external wind conditions and also the buoyancy induced flows generated by the accumulating hydrogen. Having obtained this basic data, the realistic dispersion and explosion experiments were executed at full-scale in the hydrogen station model.

Keywords

Dispersion experiment, Explosion experiment, Hydrogen station, High-pressure hydrogen

Capabilities